TD系列斗式提升機產品概述:
| 型號 | TD160 | TD250 | TD315 | TD400 | ||||||||||||
| 料斗形式 | Q | h | zD | Sd | Q | h | zD | Sd | Q | h | zD | Sd | Q | h | zD | Sd |
| 輸送量(m3/h) | 5.4 | 9.6 | 9.6 | 16 | 12 | 22 | 23 | 35 | 17 | 30 | 25 | 40 | 24 | 46 | 41 | 66 |
| 斗寬(mm) | 160 | 250 | 315 | 400 | ||||||||||||
| 斗容(L) | 0.5 | 0.9 | 4.2 | 1.9 | 1.3 | 2.2 | 3.0 | 4.6 | 2 | 3.6 | 3.8 | 5.8 | 3.1 | 5.6 | 5.9 | 9.4 |
| 斗距(mm) | 280 | 350 | 360 | 450 | 400 | 500 | 480 | 560 | ||||||||
| 帶寬(mm) | 200 | 300 | 400 | 500 | ||||||||||||
| 斗速(m/s) | 1.4 | 1.6 | 1.6 | 1.8 | ||||||||||||
| 物料量大塊(mm) | 25 | 35 | 45 | 55 | ||||||||||||
| 型號 | TD500 | TD630 | TD160 | TD250 | TD350 | TD450 | ||||||||||
| 料斗形式 | Q | h | zD | Sd | h | zD | Sd | Q | S | Q | S | Q | S | Q | S | |
| 輸送量(m3/h) | 38 | 70 | 58 | 92 | 85 | 89 | 142 | 4.7 | 8 | 18 | 22 | 25 | 42 | 50 | 72 | |
| 斗寬(mm) | 500 | 630 | 160 | 250 | 350 | 450 | ||||||||||
| 斗容(L) | 4.8 | 9 | 9.3 | 15 | 14 | 14.6 | 23.5 | 0.65 | 1.1 | 2.6 | 3.2 | 7 | 7.8 | 14.5 | 15 | |
| 斗距(mm) | 500 | 625 | 710 | 300 | 400 | 500 | 640 | |||||||||
| 帶寬(mm) | 600 | 700 | 200 | 300 | 400 | 500 | ||||||||||
| 斗速(m/s) | 1.8 | 2 | 1 | 1.25 | 1.25 | 1.25 | ||||||||||
| 物料量大塊(mm) | 60 | 70 | 25 | 35 | 45 | 55 | ||||||||||
說明:1.表中斗容為計算斗容,輸送量按填充系數0.6計算得出。


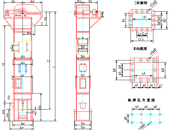
?TD系列斗式提升機安裝技術參數表:
|
提升機 |
輪廓高度 |
正機結構尺寸 |
料斗 |
地角孔尺寸 |
||||||
|
H |
H4 |
S |
t |
b |
d8 |
b8 |
n3 |
d3 |
||
|
TD100 |
C+1100 |
C-820 |
600 |
200 |
200 |
100 |
200 |
310 |
8 |
φ18 |
|
TD160 |
C+1363 |
C-930 |
700 |
250 |
350/280 |
160 |
250 |
400 |
8 |
φ18 |
|
TD250 |
C+1535 |
C-1250 |
800 |
250 |
450/360 |
250 |
300 |
538 |
8 |
φ18 |
|
TD315 |
C+1640 |
C-2105 |
850 |
250 |
500/400 |
315 |
300 |
648 |
8 |
φ18 |
|
TD400 |
C+1790 |
C-1500 |
950 |
250 |
560/480 |
400 |
400 |
768 |
8 |
φ18 |
|
TD500 |
C+1865 |
C-1700 |
900 |
250 |
625/500 |
500 |
400 |
900 |
8 |
φ18 |
|
TD630 |
- |
- |
950 |
315 |
710 |
630 |
380 |
1020 |
10 |
φ30 |
表2
|
提升機 |
上、下部機殼及外形輪廓尺寸 |
中部機殼尺寸 |
|||||||||||
|
H6 |
A2 |
A8 |
A9 |
B2 |
B8 |
B9 |
A5 |
A6 |
A7 |
B5 |
B6 |
B7 |
|
|
TD100 |
1210 |
692 |
776 |
1050 |
220 |
370 |
330 |
670 |
776 |
805 |
224 |
330 |
390 |
|
TD160 |
1500 |
685 |
996 |
1235 |
295 |
461 |
475 |
850 |
982 |
1021 |
315 |
447 |
525 |
|
TD250 |
1800 |
1175 |
1266 |
1600 |
394 |
596 |
610 |
1120 |
1152 |
1302 |
450 |
582 |
682 |
|
TD315 |
1800 |
1200 |
1266 |
1746 |
440 |
706 |
710 |
1220 |
1254 |
1407 |
562 |
710 |
794 |
|
TD400 |
2000 |
1350 |
1558 |
1980 |
535 |
828 |
835 |
1400 |
1548 |
1580 |
670 |
818 |
920 |
|
TD500 |
2300 |
1410 |
1610 |
2200 |
605 |
980 |
1000 |
1400 |
1570 |
1630 |
780 |
950 |
1040 |
|
TD630 |
2500 |
1590 |
1890 |
2500 |
660 |
1110 |
1110 |
1680 |
1850 |
1910 |
900 |
1070 |
1160 |
表3
|
提升機 |
卸???料???口???尺???寸 |
|||||||||
|
H1 |
A4 |
a1 |
a2 |
a3 |
b1 |
b2 |
b3 |
n1 |
d1 |
|
|
TD100 |
520 |
438 |
334 |
120 |
390 |
224 |
95 |
280 |
12 |
φ12 |
|
TD160 |
630 |
548 |
365 |
150 |
430 |
315 |
150 |
381 |
12 |
φ12 |
|
TD250 |
750 |
713 |
600 |
200 |
676 |
450 |
200 |
526 |
12 |
φ12 |
|
TD315 |
850 |
754 |
562 |
230 |
630 |
562 |
230 |
630 |
12 |
φ12 |
|
TD400 |
850 |
824 |
670 |
295 |
758 |
670 |
295 |
758 |
12 |
φ14 |
|
TD500 |
1000 |
885 |
700 |
355 |
880 |
780 |
300 |
800 |
12 |
φ18 |
|
TD630 |
1200 |
1045 |
700 |
300 |
800 |
900 |
280 |
1000 |
14 |
φ18 |
?表4